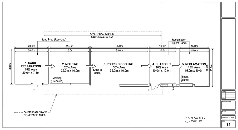
Vertical Flaskless Clay Sand Processing Line Space Requirements: Floor Space, Ceiling Height, and Facility Layout Planning
Vertical flaskless molding line space requirements explained by a foundry equipment engineer: ceiling height (8m standard, 6m adaptable), floor area by capacity tier, pit depth, crane clearance, and facility layout planning for existing buildings.